امروز: پنج شنبه 9 بهمن 1404, 11:43 am
خانه سیمپسون ها
- homer-rocks!
- مترجمین

- پست: 10
- تاریخ عضویت: دو شنبه 2 آبان 1390, 10:49 pm
Re: خانه سیمپسون ها
آره خیلی خونه باحالی دارند
- Homer Jay Simpson
- کاربر ثبت شده

- پست: 19
- تاریخ عضویت: دو شنبه 21 آذر 1390, 7:39 pm
- محل اقامت: تهران
Re: خانه سیمپسون ها
ایول. حیف محله اش تو تهران نایابه وگرنه یکی میساختیم. خیلی باحاله.
I am so smart! I am so smart! S.M.R.T! I mean S.M.A.R.T!

- Homer_Simpson
- مدیر سایت

- پست: 1437
- تاریخ عضویت: شنبه 28 آبان 1390, 5:23 pm
Re: خانه سیمپسونها
پس چرا آپلودش نکردی؟bart نوشته شده:امشب آپ میکنم
:::: راهنمای دانلود ویدیو ها ::::
خانه ی واقعی سیمپسون ها
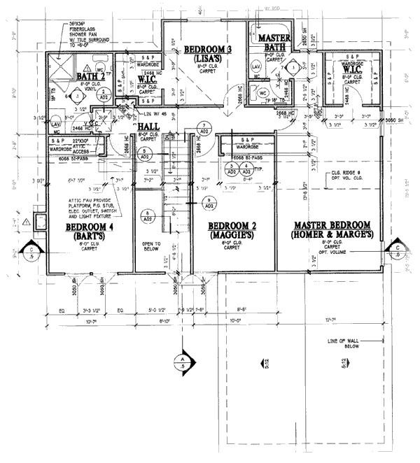
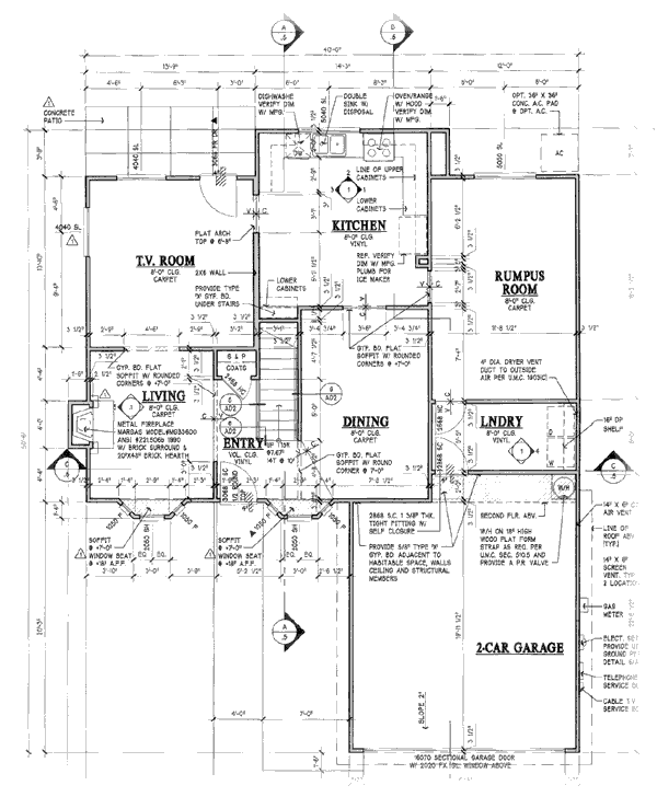
این خانه به مناسبت جشن 10 سالگی سیمپسون ها (بیش از 10 سال پیش) در ایالت نِوِدا آمریکا ساخته شده است.
در مراسمی از مَت گرونینگ، خالق سیمپسون ها دعوت به عمل آمده بود و مَت در این مراسم حضور داشت و از قسمت های مختلف خانه دیدن کرد.
تمامی اجزای این خونه از خانه ی سیمپسون ها در سریال کپی شده و اندازه واقعی به خود گرفته از این رو شباهت زیادی به خانه ی سیمپسون ها دارد.
(تصاویر و نقشه ی این خانه به همین پست پیوست شده اند. برای دیدن سایز اصلی بر روی تصویر کلیک کنید.)
در مراسمی از مَت گرونینگ، خالق سیمپسون ها دعوت به عمل آمده بود و مَت در این مراسم حضور داشت و از قسمت های مختلف خانه دیدن کرد.
تمامی اجزای این خونه از خانه ی سیمپسون ها در سریال کپی شده و اندازه واقعی به خود گرفته از این رو شباهت زیادی به خانه ی سیمپسون ها دارد.
(تصاویر و نقشه ی این خانه به همین پست پیوست شده اند. برای دیدن سایز اصلی بر روی تصویر کلیک کنید.)
- Homer_Simpson
- مدیر سایت

- پست: 1437
- تاریخ عضویت: شنبه 28 آبان 1390, 5:23 pm
Re: خانه سیمپسون ها
توی آمریکا هستش؟
:::: راهنمای دانلود ویدیو ها ::::
Re: خانه ی واقعی سیمپسون ها
Homer_Simpson نوشته شده:توی آمریکا هستش؟
SHaHaB نوشته شده:در ایالت نِوِدا آمریکا ساخته شده است.
- Homer_Simpson
- مدیر سایت

- پست: 1437
- تاریخ عضویت: شنبه 28 آبان 1390, 5:23 pm
Re: خانه ی واقعی سیمپسون ها
[/quote]SHaHaB نوشته شده:در ایالت نِوِدا آمریکا ساخته شده است.
کسی می تونه بازدید کنه؟یا داخلش زندگی می کنن؟
:::: راهنمای دانلود ویدیو ها ::::
Re: خانه ی واقعی سیمپسون ها
چه سوالی!Homer_Simpson نوشته شده:کسی می تونه بازدید کنه؟یا داخلش زندگی می کنن؟
نمیدونم، ولی فکر میکنم توش ساکن باشن...
- Homer_Simpson
- مدیر سایت

- پست: 1437
- تاریخ عضویت: شنبه 28 آبان 1390, 5:23 pm
Re: خانه سیمپسون ها
چه بد اونوقت اگه مرفتیم نِوِدا میرفتیم بازدید می کردیم.
:::: راهنمای دانلود ویدیو ها ::::








